Home to over 1500 families from diverse cultures, DLF Gardencity is a green haven designed with verdant greenery, lush landscaping, water features and open spaces. The round-the-clock, state-of-the-art security makes this a safe place for residents to thrive in and celebrate together as a big community.

DLF Regal Gardens in Sector 90
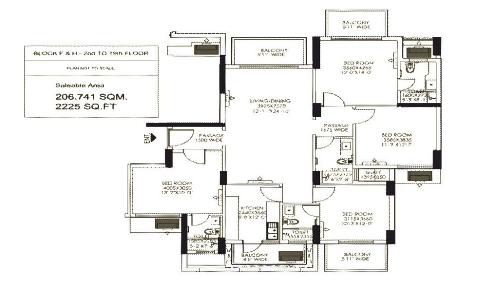
Gurgaon is a ready-to-move housing society. It offers apartments in varied budget range. These units are a perfect combination of comfort and style, specifically designed to suit your requirements and conveniences. There are 2BHK, 3BHK and 4BHK Apartments available in this project. This housing society is now ready to be called home as families have started moving in. Check out some of the features of DLF Regal Gardens housing society:
*DLF Regal Gardens Sector 90 has 8 towers, with 29 floors each and 562 units on offer.
*Spread over an area of 11.1 acres, DLF Regal Gardens Sector 90, Gurgaon is one of the spacious housing societies in the Gurgaon region. With all the basic amenities available, DLF Regal Gardens fits into your budget and your lifestyle.
*Sector 90, Gurgaon has good connectivity to some of the important areas in the proximity such as HDFC Bank, Pataudi Rd, Holiday Inn Gurugram Sector 90 and SS Omnia, Sector 86 and so on.