BPTP Amstoria 102
BPTP AMSTORIA 102 Gurgaon is one of a kind community in the making. Apart from being strategically located and well connected to South Delhi through the Dwarka Expressway, the community boasts of being extremely green, peaceful, and serene and is surely likely to become the next extension of luxury living for South Delhiites.
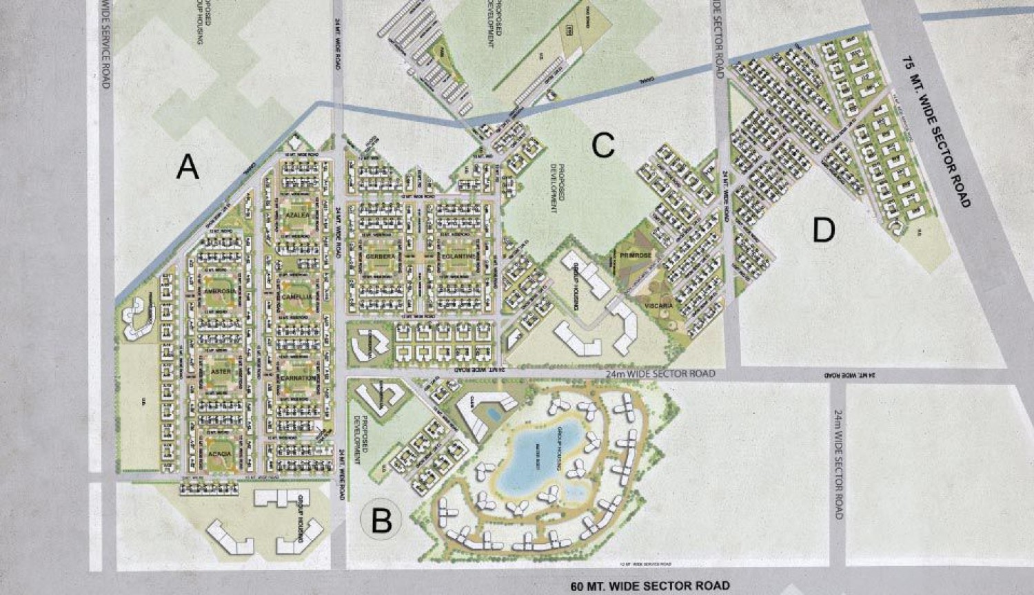
The community is spread over 200 acres of lush greenery, considering that most of the 200 acres are a low-rise development with a mix of Country Floors and Farm Villas, yet boasting of all one would expect from a smaller community, thus providing the best of both worlds to the occupants of these fantastic modern homes. The Community is packed with modern features like power backup, security, surveillance, club house, soothing greenery etc. However, this is not the end, but just the beginning.
